WG Nürnberg Startseite 5,0 16 Google Rezensionen 1.900+ Followers Facebook Community

WG Zimmer 11.2.14 in Nürnberg

Dein Zimmer ist ein vorteilhaft geschnittenes, für seine Größe sehr geräumiges, normales Zimmer mit insgesamt 9m². Du hast ein, zur Grasersgasse ausgerichtetes, schallisoliertes Fenster. Solltest du vom Land in die Stadt ziehen, ist ein solches Zimmer für dich, trotz der Schallisolierung, nicht das Passende. Für eine Innenstadt typisch ist mit Lärm zu rechnen.

Zimmer Info
Zimmernummer 11.2.14
Quadratmeter 10
Ausrichtung zur Straße
Fenster 1

Bilder von 11.2.14

WG Gras 11 2 Bild WG Gras 11 2 Bild WG Gras 11 2 Bild WG Gras 11 2 Bild WG Gras 11 2 Bild WG Gras 11 2 Bild

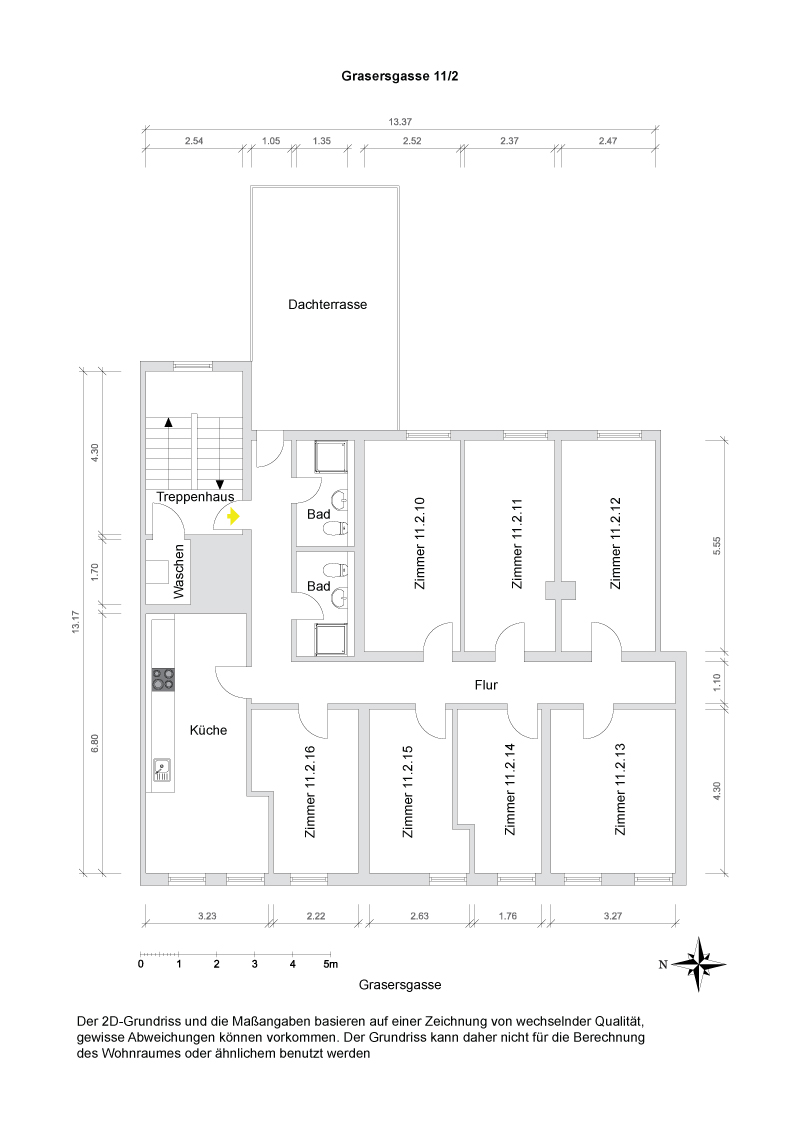
Grundrisse der WG

Grundriss WG Gras 11 2 Grundriss WG Gras 11 2 Grundriss WG Gras 11 2

Allgemeinflächen der WG

WG Info
Etage 2
Quadratmeter 6
Mitbewohner 6
Terrassenqm 17
Bäder 2
Fahrrad im Hof der Grasersgasse 21
Waschen im Treppenhaus 3.OG
Map Karte

Bilder von WG Gras 11 2

WG Gras 11 2 Bild WG Gras 11 2 Bild WG Gras 11 2 Bild WG Gras 11 2 Bild WG Gras 11 2 Bild WG Gras 11 2 Bild WG Gras 11 2 Bild WG Gras 11 2 Bild WG Gras 11 2 Bild WG Gras 11 2 Bild WG Gras 11 2 Bild WG Gras 11 2 Bild WG Gras 11 2 Bild WG Gras 11 2 Bild WG Gras 11 2 Bild WG Gras 11 2 Bild

Weitere Zimmer in WG Gras 11 2

Zimmer 11.2.10
14 m²
Zimmer 11.2.11
13 m² · 503€/Monat ✓ frei
Zimmer 11.2.12
13 m²
Zimmer 11.2.13
14 m²
Zimmer 11.2.15
10 m²
Zimmer 11.2.16
11 m²

Alle WGs in Nürnberg

WG Gras 11 1 WG Gras 11 2 WG Gras 11 3 WG Gras 15 1 WG Gras 15 2 WG Gras 15 3 WG Gras 21 0 WG Gras 21 1 WG Gras 21 2 WG Gras 21 3 WG Klara 9 2 WG Klara 9 3 WG Klara 9 4 WG Stern 8-10 1 WG Stern 8-10 2 WG Stern 8-10 3 WG Stern 8-10 4
← Zur Startseite Freie Zimmer ansehen WhatsApp Kontakt

Bewerben

Wenn Du ein Zimmer haben möchtest schreibe uns eine Email an
info at wg-nuernberg.de
rufe uns an unter +49 (0) 911 2355810
oder kontaktiere uns via WhatsApp

Besichtigen

Wenn Du ein Zimmer oder die WGs besichtigen möchtest, frage einfach bei uns an. Genau gleich wie für die Bewerbung.